Page suivante
Page précédente
Annecy (74960)

Appartement 3 pièce(s) 2 chambre(s) 61.48 m²

1
Ascenseur
1
Réf 1418 1

NOUVEAU et EXCLUSIF! T3 de 62m2 au 1er étage d'une résidence de bon standing FRANCO SUISSE

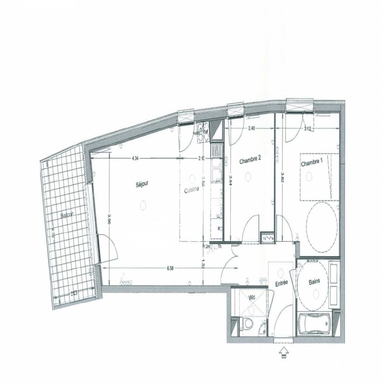
Cet appartement se compose d'un séjour spacieux de 28 m² avec cuisine ouverte, donnant accès à une terrasse bien exposée de 9 m². Il comprend également deux chambres, dont une avec placard dressing, une salle de bains et des WC séparés avec rangements. Une cave au rez-de-chaussée et une place de parking sécurisée en sous-sol complètent l'offre.

Idéalement situé à proximité de commerces, écoles et transports en commun, facilitant ainsi votre quotidien.

Les plus: L'emplacement, logement économe en énergie, terrasse et stationnement (en sus 25750€)

Pour toute information complémentaire ou pour organiser une visite, n’hésitez pas à nous contacter.

Bilan énergétique

Diagnostics énergetiques
A propos de ce bien Caractéristiques de ce bien
  • Surface 61,48 m²
  • carrez 61,48 m²
  • séjour 28 m²
  • 2 chambre(s)
  • 1 salle(s) de bain
  • construit en 2015
  • cuisine américaine (semi-équipée)
  • Chauffage trad_format_chauff_mixte : radiateur (gaz de ville)
  • exposition Sud-Ouest
  • 1er étage
  • 7 étage(s)
  • ascenseur
  • cave
  • terrasse
  • visiophone
  • accès handicapé

Composition

Composition de ce bien

Rez-de-chaussée

  • salle de bain 4.52 m²

Etage 1

  • salon/sejour 28 m²
  • chambre 12.6 m²
  • chambre 9 m²
  • WC 2.2 m²
  • terrasse 9 m²

Info copro

Copropriété
  • Copropriété Oui
  • Nombre de lots 26

Financier

Informations financières
Les honoraires d'agence seront intégralement à la charge du vendeur  
Charges 158 €
Taxe foncière annuelle 949 €

Autour du bien

Découvrez le quartier

Simulation

Calcul des mensualités
* Champs obligatoires
LAPORTE IMMOBILIER Agence