Page suivante
Page précédente
Épagny (74330)

Appartement 3 pièce(s) 2 chambre(s) 71.7 m²

Nous consulter
Réf 2016296
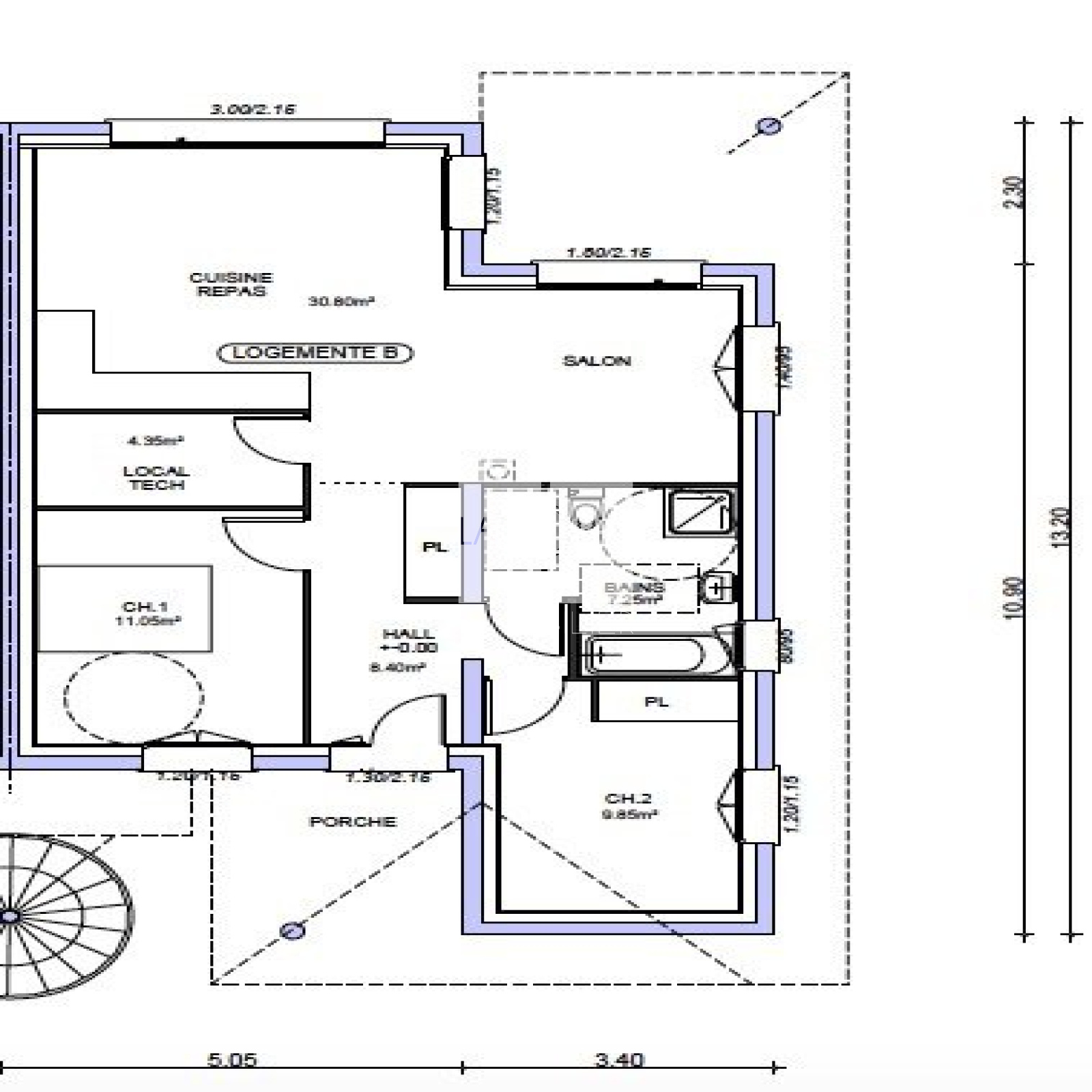
T3 de 72m2 avec salon donnant sur une terrasse et un jardin de 157m2, cuisine ouverte avec espace repas, 2 chambres, salle de bains avec douche et baignoire. Vendu avec 2 places de parking et un garage de 22m2 (avec rangement possible sous combles). Frais de notaire réduits. Résidence neuve de 3 logements. Remise des clefs prévue pour MAI 2018. Proximité piste cyclable et commerces.

Bilan énergétique

Diagnostics énergetiques
A propos de ce bien Caractéristiques de ce bien
  • Surface 71,70 m²
  • 2 chambre(s)
  • Chauffage individuel : radiateur (gaz)
  • exposition Sud-Ouest

Composition

Composition de ce bien

Rez-de-chaussée

  • séjour 30.8 m²
  • local technique 4.35 m²
  • salle de bains / toilettes 7.25 m²
  • entrée 8.4 m²
  • chambre 11.05 m²
  • chambre 9.85 m²
  • terrasse 37 m²
  • jardin 157 m²

Autour du bien

Découvrez le quartier

Simulation

Calcul des mensualités
* Champs obligatoires
LAPORTE IMMOBILIER Agence